Wohnraum für Kippel und seine Zukunft
Im direkt am historischen Dorfteil in Kippel entstehen bis 2028 über 20 neue Wohnungen zum Kauf und zur Miete. Das Bauprojekt passt besonders gut zu Kippel und ins Lötschental, weil es an bester Lage Tradition und Weitsicht verbindet.
Architektur, mehr als Wohnen
In direkter Nachbarschaft zum historischen Dorfkern mit der Kirche schreibt Kippel ein neues Kapitel in seiner Dorfentwicklung: Das Projekt Maria Rat schafft mit seiner Architektur eine zeitgemässe und wirtschaftliche Dichte an Wohnqualität - sinnhaft kombiniert mit der lokalen Bautradition.

Dorfentwicklung - vorausschauend
Die Dorfentwicklung in Kippel ist innovativ und vorausschauend. So lautet die Strategie des Gemeinderats, und so werden einzelne Projekte umgesetzt. Maria Rat ist die Antwort auf die ausgewiesene Nachfrage nach Wohnraum. Die Bevölkerung hat der Gründung einer AG als Trägerschaft bereits zugestimmt. Ähnlich möchte die Gemeinde bevorstehende Investitionen in die Infrastruktur und Energieversorgung umsetzen.

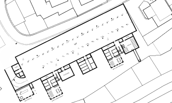
Eine Siedlung - acht Gebäude
Die Siedlung geht mit dem Standort «hinter der Kirche» mit Respekt und Verantwortung um. Die Anordnung der acht Gebäude führt die Bautradition in der Nachbarschaft, die von der Abfolge von Gassen und Plätzen lebt, in die Zukunft. Wer in Maria Rat einzieht, wird eine Dichte an Orten erinnert, die an den Dorfkern erinnern. Am stärksten bringt die traditionelle Holzbauweise zum Ausdruck, dass das Projekt eine ortsbezogene und langlebige Wohnidee anbietet.

Kauf oder Miete - für die Bevölkerung
Das Wohnangebot Maria Rat ist kompakt organisiert und kostengünstig. Es richtet sich hauptsächlich an die einheimische Bevölkerung und Familien, die nach Kippel ziehen möchten. Mit dem Vorprojekt sind Wohnungen mit zwei bis fünf Zimmern ausgewiesen. Sie können gekauft oder gemietet werden.
Zuhause am Kamin
Das Angebot an zwei bis fünf Zimmern pro Wohnung erinnert an «Kammern». Sie können einzeln als Schlaf- oder Wohnzimmer, als Arbeitsraum oder Gästebereich eingerichtet werden. Dazu passt die geplante traditionelle Blockbauweise aus übereinander gestapeltem Massivholz. Sie sorgt für ein Zuhause in besonders guter Wohnatmosphäre und einem behaglichen Raumklima. Jede Wohnung ist mit einem Schwedenofen ausgerüstet.

Lebensqualität wie im Einfamilienhaus
Die Mehrzahl der Wohnungen belegt eine ganze Etage. Dies ermöglicht eine optimale Orientierung der Räume und Aussichten in alle Himmelsrichtungen - und eine häusliche Lebensqualität ohne Treppensteigen - fast so wie in einem Einfamilienhaus.

Häuser mit ortstypischem Gesicht
Die einzelnen Häuser der Siedlung bestehen aus innen gedämmten Strickbauten, sichtbarem Massivholz und robusten Betonsockeln. Diese traditionelle und sehr langlebige Bauweise spricht unmissverständlich für die architektonische Absicht, den Wohnhäusern in Kippel ein ortstypisches Gesicht zu geben.

Anbindung an den Dorfkern
Die Siedlung Maria Rat besteht aus acht schlanken, parallel angeordneten Wohnhäusern. Durch ihre präzise Anordnung am Dorfrand entstehen Gassen, Plätze und grüne Aussenräume. Sie erinnern respektvoll an Orte im historischen Dorfkern, Die gesamte Disposition des Projekts, die Ausrichtung am Hang, die Gebäudeform und die Verteilung der einzelnen Gebäude, nimmt Bezug auf den historischen Dorfkern. So ist ein dichtes Ensemble mit guter landschaftlicher Durchlässigkeit und einer starken, ortsbaulichen Identität entstanden.

Für Dorf und Tal
Für das Dorf Kippel hat die Wohnsiedlung Maria Rat die Ausstrahlung eines Pionierprojekts. Es soll zeigen, was es braucht, damit verdichtetes Wohnen in einem Bergdorf gelingt: Ein zeitgemässes Angebot an Wohnraum, eine Anordnung der Gebäude, die mit dem Bestand verbunden ist und eine Architektur, die insgesamt für Robustheit und Langlebigkeit steht. Wenn 2028 die ersten Bewohner/innen einziehen, kann Maria Rat so zum Sinnbild für das gute Leben in Kippel und im Lötschental werden.

Drei persönliche Argumente

Pionierprojekt für die Heimat
"Mit dem Projekt "grimmänd" Maria Rat verbinde ich viel persönliches Herzblut für Kippel und das Lötschental ."
Medea Karlen, Projektleiterin Atelier Summermatter Ritz, Brig

Wohnraum für Kippel
"Beschränke dich auf den kleinsten Raum, und du wirst sehen, wie viel Raum er dir gibt."
Sinngemäss nach J.W. von Goethe

Tradition und Weitsicht
"Die Architektur verbindet Tradition und Weitsicht, genau so, wie sich der Gemeinderat das vorstellt."
Christian Rieder, Gemeindepräsident Kippel
diese Seite unsichtbar machen
Mit einer Umfrage hat die Gemeinde 2025 den grossen Bedarf an Wohnraum in Kippel nachgewiesen. Die Resultate aus der Umfrage sind in die Erarbeitung des Vorprojekts eingeflossen.
Wohnungen Kauf
Wohnungen Miete
reserviert oder verkauft
reserviert oder vermietet
Bildergalerie
Der Planungs- und Bauprozess wird in der Galerie Maria Rat fortlaufend dokumentiert.
Terminplan
Die Dorferweiterung Maria Rat in Kippel entsteht in Etappen. Die geplanten Schritte bis zur Fertigstellung 2028:
2027 Q1
Abbruch Maria Rat
2027 Q4
Grundsteinlegung und Beginn der Bauarbeiten an den ersten Strukturen.
2028 Q2
Fertigstellung der Rohbauten und Start der Innenausbauarbeiten.
2028 Q3
Abschluss der Installationen und erste Übergaben an die Bewohnerschaft.
2028 Q4
Vollendung aller Wohneinheiten und Aussenanlagen des Projekts.
Interessiert am Wohnangebot?
Kontaktieren Sie uns für weitere Informationen.

Fragen und Antworten
Hier finden Sie die wichtigsten Fragen und Antworten zum Projekt Maria Rat in Kippel.
Die Wirtschaftlichkeit des siegreichen Projekts wurde vertieft betrachtet. Das Ergebnis fliesst in den nun folgenden Projektierungsauftrag an das Architektenteam ein.
Mit einer öffentlich durchgeführten Umfrage hat die Gemeinde Kippel 2026 die Notwendigkeit, Wohnraum für die einheimische Bevölkerung und junge Familien zu schaffen, nachgewiesen. (...).
